新宮町緑ケ浜2丁目6期 1号棟 新築戸建(売買 新築一戸建て) | 糟屋郡新宮町緑ケ浜 | 福岡市周辺の不動産情報はヤマダ不動産 福岡香椎店

新宮町緑ケ浜2丁目6期 1号棟 新築戸建 | 糟屋郡新宮町緑ケ浜の不動産物件

10万円分の「全国のヤマダデンキで使えるポイント」or「JCBギフトカード」or「65インチTV」or「空気清浄機・ダイソンドライヤー等の家電」or「6畳用エアコン」or「ヤマダデンキ特別優待割引券」≪限定1品≫プレゼント☆
さらに、ご購入相談で来店後、Google口コミ投稿で2000円分のQUOカードプレゼント!※一世帯2回まで
土日祝日もご案内可能です^^
是非一度「ヤマダ不動産」へご相談ください!あらゆる不安や疑問に誠心誠意お応えします^^
【新築一戸建て】 新築 駐車場あり
価格 3,798万円 (税込)
鹿児島本線 新宮中央駅 徒歩17分
スマホ表示
物件コード:120986
所在地 建物面積
土地面積
間取り 築年月
福岡県糟屋郡新宮町緑ケ浜2丁目 113.52m2
205.46m2
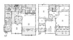
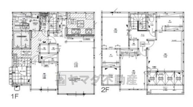
4LDK 2026/07

物件基本情報

▲1棟限定^^新生活におススメな物件をご紹介させていただきます^^是非お問合せ下さい^^
▲ゆとりある4LDK^^全居室収納スペース付き^^WIC、パントリー完備^^
物件種目 新築一戸建て
物件名称 新宮町緑ケ浜2丁目6期 1号棟 新築戸建
所在地 福岡県糟屋郡新宮町緑ケ浜2丁目
交通
鹿児島本線 新宮中央駅 徒歩17分
鹿児島本線 ししぶ駅 徒歩14分
階数 2階建
建物構造 木造
建ぺい率/容積率 - / -
駐車場 有 (2台)
学校 新宮北小学校 / 新宮中学校
設備・条件
  • 汚水:公共下水
  • 水道:公営水道
  • TVドアホン
  • Wクローゼット
  • 追い焚き
  • 洗浄便座
  • シャンプードレッサー
  • 浴室1坪以上
  • 床下収納
  • 浴室乾燥機
  • オートバス
  • 食器洗乾燥機
  • カウンターキッチン
  • コンロ三口
  • システムキッチン
  • バス・トイレ別
ヤマダ不動産 福岡香椎店
Tel092-663-1616
お気軽にお問い合わせください。

画像・写真

  • 1棟限定^^
    1棟限定^^
  • 前面道路。南側約5.8m公道。 車による騒音や排気ガスの影響が比較的少なく、通行人の視線なども気にならない、静かな環境^^
    前面道路。南側約5.8m公道。 車による騒音や排気ガスの影響が比較的少なく、通行人の視線なども気にならない、静かな環境^^
  • 前面道路。南側約5.8m公道。 スーパー、コンビニ、ドラッグストアまで車6分/1.4km圏内^^周辺環境充実しています^^
    前面道路。南側約5.8m公道。 スーパー、コンビニ、ドラッグストアまで車6分/1.4km圏内^^周辺環境充実しています^^
  • 同仕様写真。家族が集まる開放的なリビング。思い思いの時間を過ごしたり食事をしたり、素敵な団らんの場になりますね^^
    同仕様写真。家族が集まる開放的なリビング。思い思いの時間を過ごしたり食事をしたり、素敵な団らんの場になりますね^^
  • 同仕様写真。対面式キッチンなのでリビングにいるご家族とコミュニケーションを取りながら洗い物や、お料理が楽しめそうですね^^
    同仕様写真。対面式キッチンなのでリビングにいるご家族とコミュニケーションを取りながら洗い物や、お料理が楽しめそうですね^^
  • 同仕様写真。3種類の料理が同時に調理できる、3口ガスコンロ。忙しい夕食の支度時間が短縮できて効率よくお料理が楽しめます。
    同仕様写真。3種類の料理が同時に調理できる、3口ガスコンロ。忙しい夕食の支度時間が短縮できて効率よくお料理が楽しめます。
  • 同仕様写真。大きなお鍋も楽々洗える幅の広いシンクです^^ステンレスシンクなので簡単にお掃除できますよ。洗剤やスポンジもすっきりできる収納付き。
    同仕様写真。大きなお鍋も楽々洗える幅の広いシンクです^^ステンレスシンクなので簡単にお掃除できますよ。洗剤やスポンジもすっきりできる収納付き。
  • 同仕様写真。コンロ上には換気扇完備^^すぐ横に小窓が設けられているので、換気扇と合わせてWで換気できます^^
    同仕様写真。コンロ上には換気扇完備^^すぐ横に小窓が設けられているので、換気扇と合わせてWで換気できます^^
  • 同仕様写真。炊事時間を大幅に短縮できる食器洗浄乾燥機付き^^食器を洗う手間が減るので家族とのコミュニケーションの時間や自分の時間が増えますね。
    同仕様写真。炊事時間を大幅に短縮できる食器洗浄乾燥機付き^^食器を洗う手間が減るので家族とのコミュニケーションの時間や自分の時間が増えますね。
  • 同仕様写真。キッチンに床下収納があります。長期保存ができるもの、調理器具、防災グッズを入れておくのもいいですね。
    同仕様写真。キッチンに床下収納があります。長期保存ができるもの、調理器具、防災グッズを入れておくのもいいですね。
  • 同仕様写真。おいだき機能つきなのでお風呂に入る時間が異なるご家庭には嬉しいですね。ボタン一つで快適で便利な生活が^^
    同仕様写真。おいだき機能つきなのでお風呂に入る時間が異なるご家庭には嬉しいですね。ボタン一つで快適で便利な生活が^^
  • 同仕様写真。1日の疲れを癒すくつろぎのバスルーム。足を伸ばしてもゆったりと入れるサイズです。お子様と一緒にお風呂に入っても狭くないですね^^
    同仕様写真。1日の疲れを癒すくつろぎのバスルーム。足を伸ばしてもゆったりと入れるサイズです。お子様と一緒にお風呂に入っても狭くないですね^^
  • 同仕様写真。浴室暖房乾燥機には、暖房、乾燥、涼風、換気の4つの機能が付いています。タイマー付きです。換気・雨の日の洗濯も安心です^^
    同仕様写真。浴室暖房乾燥機には、暖房、乾燥、涼風、換気の4つの機能が付いています。タイマー付きです。換気・雨の日の洗濯も安心です^^
  • 同仕様写真。湯量・湯温の設定、そして保温までワンタッチのフルオートバス。便利な追い炊き機能付きです。
    同仕様写真。湯量・湯温の設定、そして保温までワンタッチのフルオートバス。便利な追い炊き機能付きです。
  • 同仕様写真。1階2階の2ヶ所にトイレがありますので、忙しい朝にも家族に気を使わず、ゆとりが生まれますね^^
    同仕様写真。1階2階の2ヶ所にトイレがありますので、忙しい朝にも家族に気を使わず、ゆとりが生まれますね^^
  • 同仕様写真。キッチン後方には、広々としたパントリー付き^^洗面室にも近く、食料品だけでなく日用品などの収納にも^^
    同仕様写真。キッチン後方には、広々としたパントリー付き^^洗面室にも近く、食料品だけでなく日用品などの収納にも^^
  • 同仕様写真。お子様も高齢の方も安心して上り下りができる手摺がついた安心設計です。
    同仕様写真。お子様も高齢の方も安心して上り下りができる手摺がついた安心設計です。
  • 同仕様写真。ウォークインクローゼット付きなので、毎日のコーディネートが楽しくなりそうですね^^
    同仕様写真。ウォークインクローゼット付きなので、毎日のコーディネートが楽しくなりそうですね^^
  • 同仕様写真。住む人のこだわりを活かす洋室^^広めのクローゼットもあり荷物もすっきり片付けられ、ゆとりのある暮らしが出来ます^^
    同仕様写真。住む人のこだわりを活かす洋室^^広めのクローゼットもあり荷物もすっきり片付けられ、ゆとりのある暮らしが出来ます^^
  • 同仕様写真。主寝室としてお使いいただけそうなこちらのお部屋は、日当たりが良く、爽やかな風を感じて起きる朝は、快適生活の始まりに。
    同仕様写真。主寝室としてお使いいただけそうなこちらのお部屋は、日当たりが良く、爽やかな風を感じて起きる朝は、快適生活の始まりに。
  • 同仕様写真。洋室にはハンガーパイプ付きのウォークインクローゼットが設けられています。たっぷり収納できるので衣替えの心配もいりませんね^^
    同仕様写真。洋室にはハンガーパイプ付きのウォークインクローゼットが設けられています。たっぷり収納できるので衣替えの心配もいりませんね^^
  • 同仕様写真。広々としたバルコニー。 天気のいい日にはお布団もまとめて干せそうですね^^
    同仕様写真。広々としたバルコニー。 天気のいい日にはお布団もまとめて干せそうですね^^
  • 同仕様写真。火災報知器が設置されていることで、火災の発生をいち早く感知し、就寝中や留守中でも素早く危険を知らせてくれるため、家族の安全を確保し被害を最小限に抑えられます。
    同仕様写真。火災報知器が設置されていることで、火災の発生をいち早く感知し、就寝中や留守中でも素早く危険を知らせてくれるため、家族の安全を確保し被害を最小限に抑えられます。
  • 同仕様写真。防犯はもちろん、セールスマン対策にもなるモニター付きインターホンです。お子さん1人での留守番時にも活躍しそうです。
    同仕様写真。防犯はもちろん、セールスマン対策にもなるモニター付きインターホンです。お子さん1人での留守番時にも活躍しそうです。
  • 同仕様写真。ご家族の靴をスッキリと片付けられるシューズボックス付きの玄関です^^スッキリと片付いた玄関は気持ちがいいです。
    同仕様写真。ご家族の靴をスッキリと片付けられるシューズボックス付きの玄関です^^スッキリと片付いた玄関は気持ちがいいです。
  • 新宮町役場
    新宮町役場
  • セブンイレブン 古賀日吉3丁目南店
    セブンイレブン 古賀日吉3丁目南店
  • ローソン 新宮緑ケ浜四丁目店
    ローソン 新宮緑ケ浜四丁目店
  • 加野病院
    加野病院
  • サンドラッグ 新宮中央店
    サンドラッグ 新宮中央店
  • ハローデイ 新宮中央店
    ハローデイ 新宮中央店
  • ライフガーデン新宮中央
    ライフガーデン新宮中央
  • ゆめマート 新宮
    ゆめマート 新宮
  • 新宮北小学校
    新宮北小学校
  • 新宮中学校
    新宮中学校

コメント

【本日見学予約可能】
☆最大10万円分のヤマダ電機商品券プレゼント実施中♪

■ゆとりある4LDK☆
■開放感のあるLDK18帖以上!
■各居室収納スペース付き♪
■ウォークインクローゼット2箇所、パントリー完備☆
■家族とのコミュニケーションが取りやすいリビング階段♪
■2面バルコニー付き◎
■カースペース2台分確保◎(車種による)
■スーパー、コンビニ、ドラッグストア⇒車6分/1.4km圏♪周辺環境充実♪

◇新宮北小学校:徒歩約11分
◇新宮中学校:徒歩約20分

☆年間1600件の相談実績☆
頭金0円可能!月々の返済がご不安な方!もっと良い条件を引き出したい方!すでにお借入のある方!など、住宅ローンのお悩みをこれまでにたくさんお受けしてきました^^
お客様に合った金融機関のご提案や、将来を見越した無理のないご返済プランの作成もしています!ぜひ一度ご相談下さい^^

周辺地図

地図を表示中...
ストリートビュー未対応エリアです。

物件詳細情報

物件用途 居住用 地目 宅地
間取り詳細 洋18.3畳(1F)、洋4.5畳(1F)、洋6畳(2F)、洋8.5畳(2F) 都市計画 市街化区域
建物向き 用途地域 第二種低層住居専用地域
土地面積基準 実測 接道 南 幅員5.7m
土地権利 所有権 私道面積 -
借地条件 - 道路位置指定 -
地代 - 不適合接道 -
建築確認番号 第KJH25-03121-1号 セットバック -
現況 - 国土法届出 不要
引渡時期 相談 取引態様 仲介
設備その他 -
特記事項 -
備考 -
情報更新日 2026/03/17 広告有効期限 2026/04/17
電話でお問い合わせ
ヤマダ不動産 福岡香椎店 店舗情報
[所在地] 福岡県福岡市東区香椎駅前2丁目11-15
[営業時間] 10:00~19:00(定休日:水曜日)
Tel092-663-1616
お気軽にお問い合わせください。