東区香椎駅東4期 新築戸建(売買 新築一戸建て) | 福岡市東区香椎駅東 | 福岡市周辺の不動産情報はヤマダ不動産 福岡香椎店

東区香椎駅東4期 新築戸建 | 福岡市東区香椎駅東の不動産物件

10万円分の「全国のヤマダデンキで使えるポイント」or「JCBギフトカード」or「65インチTV」or「空気清浄機・ダイソンドライヤー等の家電」or「6畳用エアコン」or「ヤマダデンキ特別優待割引券」≪限定1品≫プレゼント☆
さらに、ご購入相談で来店後、Google口コミ投稿で2000円分のQUOカードプレゼント!※一世帯2回まで
土日祝日もご案内可能です^^
是非一度「ヤマダ不動産」へご相談ください!あらゆる不安や疑問に誠心誠意お応えします^^

【新築一戸建て】 新築 駐車場あり
価格 5,149万円 (税込)
鹿児島本線 香椎駅 徒歩12分
スマホ表示
物件コード:119523
所在地 建物面積
土地面積
間取り 築年月
福岡県福岡市東区香椎駅東1丁目 100.33m2
100.37m2
4LDK 2026/04

物件基本情報

▲2沿線利用可能でアクセスの幅が広がります^^お気に入りの家具とインテリアで素敵な部屋を作りましょう。
▲4LDKとウォークインクローゼットでゆとりのある暮らしが実現。リビングは23帖以上の開放感あふれる空間です。2階は洋室が4部屋あるので、お子様が大きくなっても安心ですね^^
物件種目 新築一戸建て
物件名称 東区香椎駅東4期 新築戸建
所在地 福岡県福岡市東区香椎駅東1丁目
交通
鹿児島本線 香椎駅 徒歩12分
香椎線 香椎駅 徒歩12分
階数 2階建
建物構造 木造
建ぺい率/容積率 60% / 100%
駐車場 有 (1台)
学校 香椎下原小学校 / 香椎第三中学校
設備・条件
  • ガス:都市ガス
  • 汚水:公共下水
  • 水道:公営水道
  • TVドアホン
  • Wクローゼット
  • 追い焚き
  • 洗浄便座
  • シャンプードレッサー
  • 浴室1坪以上
  • 床下収納
  • 浴室乾燥機
  • オートバス
  • 食器洗乾燥機
  • 住宅性能保証付
  • カウンターキッチン
  • コンロ三口
  • システムキッチン
  • バス・トイレ別
ヤマダ不動産 福岡香椎店
Tel092-663-1616
お気軽にお問い合わせください。

画像・写真

  • 駐車スペース1台分あり^^
    駐車スペース1台分あり^^
  • 家具はイメージです。大きな窓のあるリビングは、陽光あふれる明るい空間です。居心地良く、ご家族皆がゆったり寛げる憩いの空間となりそうです。
    家具はイメージです。大きな窓のあるリビングは、陽光あふれる明るい空間です。居心地良く、ご家族皆がゆったり寛げる憩いの空間となりそうです。
  • リビングは広々とした設計で、家族が集い、寛ぐ暮らしの空間を演出しています。思い思いの時間を過ごしたり、家族みんなで食事をしたり、素敵な団らんの場になりますね。
    リビングは広々とした設計で、家族が集い、寛ぐ暮らしの空間を演出しています。思い思いの時間を過ごしたり、家族みんなで食事をしたり、素敵な団らんの場になりますね。
  • 温かみのある雰囲気と、キッチンでの作業性を兼ね備え、家族の笑顔あふれる団らんのひと時をお過ごしいただける設計になっています。
    温かみのある雰囲気と、キッチンでの作業性を兼ね備え、家族の笑顔あふれる団らんのひと時をお過ごしいただける設計になっています。
  • リビングにいるお子様を見守りながらお料理ができる対面キッチン。カウンタートップの汚れもサッと拭き取ることができ、お掃除ラクラク^^
    リビングにいるお子様を見守りながらお料理ができる対面キッチン。カウンタートップの汚れもサッと拭き取ることができ、お掃除ラクラク^^
  • 食事の後の手間を解消する食器洗い乾燥機付。冬場の洗い物で手荒れの悩みもなくなります。手洗いよりも節約できて便利。
    食事の後の手間を解消する食器洗い乾燥機付。冬場の洗い物で手荒れの悩みもなくなります。手洗いよりも節約できて便利。
  • キッチン横からボタンひとつで操作が楽々。
    キッチン横からボタンひとつで操作が楽々。
  • 三面鏡つき洗面台。鏡裏にたっぷりとした収納スペースがあります。鏡を閉めてしまえば小物は見えないため、スッキリとした印象の洗面台にできます。
    三面鏡つき洗面台。鏡裏にたっぷりとした収納スペースがあります。鏡を閉めてしまえば小物は見えないため、スッキリとした印象の洗面台にできます。
  • 1日の疲れを癒すくつろぎのバスルーム。足を伸ばしてもゆったりと入れるサイズです。お子様と一緒にお風呂に入っても狭くないですね^^
    1日の疲れを癒すくつろぎのバスルーム。足を伸ばしてもゆったりと入れるサイズです。お子様と一緒にお風呂に入っても狭くないですね^^
  • 雨の日の洗濯も安心できる浴室暖房乾燥機付き浴室。リモコンで操作もボタン1つで簡単。
    雨の日の洗濯も安心できる浴室暖房乾燥機付き浴室。リモコンで操作もボタン1つで簡単。
  • 温水洗浄機付トイレです。節水機能もあるので、安心して使えますね。もちろん、1階2階の2ヶ所にトイレがあるので、忙しい朝にもゆとりができますね。
    温水洗浄機付トイレです。節水機能もあるので、安心して使えますね。もちろん、1階2階の2ヶ所にトイレがあるので、忙しい朝にもゆとりができますね。
  • 小さなお子様やご高齢の方でも安心できる、手すり付き階段。段差も低めで設定されており、安全性にも優れています。
    小さなお子様やご高齢の方でも安心できる、手すり付き階段。段差も低めで設定されており、安全性にも優れています。
  • 掃除機や扇風機などよく使う家電や日用品、備品などの収納に便利です。
    掃除機や扇風機などよく使う家電や日用品、備品などの収納に便利です。
  • 2面採光を確保した明るい室内は、風通しも良く、大変居心地の良い空間となっております。爽やかな風を感じて起きる朝は、快適生活の始まりに。
    2面採光を確保した明るい室内は、風通しも良く、大変居心地の良い空間となっております。爽やかな風を感じて起きる朝は、快適生活の始まりに。
  • 暖かい日差しが差し込む洋室。たっぷり収納できるクローゼット付きでお部屋の中をすっきりと快適に保てます。
    暖かい日差しが差し込む洋室。たっぷり収納できるクローゼット付きでお部屋の中をすっきりと快適に保てます。
  • 住む人のこだわりを活かす洋室。日当たりがよく、寝室としての利用もおすすめ。広めのクローゼットには荷物をすっきり片付けられ、ゆとりのある暮らしが出来ます^^
    住む人のこだわりを活かす洋室。日当たりがよく、寝室としての利用もおすすめ。広めのクローゼットには荷物をすっきり片付けられ、ゆとりのある暮らしが出来ます^^
  • 家具はイメージです。ご夫婦お二人のプライベートシーンを演出する寝室は、大容量のウォークインクローゼット付き。
    家具はイメージです。ご夫婦お二人のプライベートシーンを演出する寝室は、大容量のウォークインクローゼット付き。
  • 収納力豊富なウォークインクローゼット。洋服や小物などを1箇所にまとめて美しい収納を実現します。スーツケースのような大型の荷物も置けます^^
    収納力豊富なウォークインクローゼット。洋服や小物などを1箇所にまとめて美しい収納を実現します。スーツケースのような大型の荷物も置けます^^
  • 南東側に面した大型のバルコニーは日当たり良好です。お洗濯物も気持ちよく干せそうです。日光浴をしたり、星を眺めたりも良いですね^^
    南東側に面した大型のバルコニーは日当たり良好です。お洗濯物も気持ちよく干せそうです。日光浴をしたり、星を眺めたりも良いですね^^
  • 住宅地ですが隣家との高さを変えてバルコニーを設置しているので景色を楽しめるようになっています。また南東向きで陽射しも確保しています。
    住宅地ですが隣家との高さを変えてバルコニーを設置しているので景色を楽しめるようになっています。また南東向きで陽射しも確保しています。
  • 火災発生をいち早く知らせてくれる火災報知器は標準装備です。
    火災発生をいち早く知らせてくれる火災報知器は標準装備です。
  • 防犯性、セキュリティ対策に安心できるテレビモニター付きインターフォンです。セールスマン対策にもなり安心できます。
    防犯性、セキュリティ対策に安心できるテレビモニター付きインターフォンです。セールスマン対策にもなり安心できます。
  • 白を基調とした明るい玄関です。大容量のシューズボックスは家族全員の増えがちな靴や物をすっきり収納できます。
    白を基調とした明るい玄関です。大容量のシューズボックスは家族全員の増えがちな靴や物をすっきり収納できます。
  • 住人以外の車の進入も少なく、小さなお子様を持つご家庭にも安心です。落ち着いた住宅地内で快適な生活を実現してみませんか。
    住人以外の車の進入も少なく、小さなお子様を持つご家庭にも安心です。落ち着いた住宅地内で快適な生活を実現してみませんか。
  • デイリーヤマザキ 香椎2丁目店
    デイリーヤマザキ 香椎2丁目店
  • 香椎原病院
    香椎原病院
  • えきマチ1丁目 香椎
    えきマチ1丁目 香椎
  • サニー オークタウン店
    サニー オークタウン店
  • マツモトキヨシ 香椎駅前店
    マツモトキヨシ 香椎駅前店
  • ダイレックス 香椎店
    ダイレックス 香椎店
  • ディスカウントドラッグコスモス 御島崎店
    ディスカウントドラッグコスモス 御島崎店
  • ヤマダデンキ 家電住まいる館YAMADA福岡香椎店
    ヤマダデンキ 家電住まいる館YAMADA福岡香椎店
  • 香椎下原小学校
    香椎下原小学校
  • 香椎第三中学校
    香椎第三中学校
  • 複数の調理を一度に行うことができる3口コンロ。効率よくお料理が出来ます。毎日のお料理も楽しくなりますね^^
    複数の調理を一度に行うことができる3口コンロ。効率よくお料理が出来ます。毎日のお料理も楽しくなりますね^^
  • 広々とした凸型シンクに洗剤ポケットを標準装備。大きなお鍋など洗いやすいです。
    広々とした凸型シンクに洗剤ポケットを標準装備。大きなお鍋など洗いやすいです。
  • お手入れが簡単なスリム型レンジフードです。調理により発生する油煙や臭いを吸い込み、屋外へ排気してくれます。
    お手入れが簡単なスリム型レンジフードです。調理により発生する油煙や臭いを吸い込み、屋外へ排気してくれます。
  • キッチンにある床下収納は、居住スペースを減らさずに買い置きの調味料や非常食などを保管することができます。
    キッチンにある床下収納は、居住スペースを減らさずに買い置きの調味料や非常食などを保管することができます。
  • 湯量・湯温の設定、そして保温までワンタッチのフルオートバス。便利な追い炊き機能付きです。
    湯量・湯温の設定、そして保温までワンタッチのフルオートバス。便利な追い炊き機能付きです。

コメント

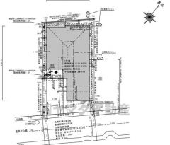
リビング3面採光☆南東向き♪リビング階段◎WIC・リビング収納付き!スーパー・コンビニ徒歩10分^^

【おすすめポイント】
■2沿線利用可能でアクセスの幅が広がります◎JR香椎駅徒歩13分♪
■全居室2面採光で、どこにいても陽当たり・通風良好です^^
■リビングは23帖の大空間♪3面採光の明るい空間になっています☆
■家族で顔を合わせる機会が増えるリビング階段採用◎
■約8.8帖の主寝室には収納力のあるWIC付き!
◇香椎下原小学校:徒歩約17分
◇香椎第三中学校:徒歩約7分

ご希望条件をもとに物件をご紹介いたします。お気軽にお問合せ下さい。

∵‥‥∵‥‥∵‥‥∵‥‥∵‥‥∵‥‥
☆年間1600件の相談実績☆
頭金0円可能!月々の返済がご不安な方!もっと良い条件を引き出したい方!すでにお借入のある方!など、住宅ローンのお悩みをこれまでにたくさんお受けしてきました^^
お客様に合った金融機関のご提案や、将来を見越した無理のないご返済プランの作成もしています!ぜひ一度ご相談下さい^^
∵‥‥∵‥‥∵‥‥∵‥‥∵‥‥∵‥‥

周辺地図

地図を表示中...
ストリートビュー未対応エリアです。

物件詳細情報

物件用途 居住用 地目 宅地
間取り詳細 LDK18.5畳(1F)、洋4畳(2F)、洋5畳(2F)、洋8.8畳(2F) 都市計画 市街化区域
建物向き 南東 用途地域 第一種中高層住居専用地域
土地面積基準 実測 接道 公道 南東 幅員4.3m
土地権利 所有権 私道面積 -
借地条件 - 道路位置指定 -
地代 - 不適合接道 -
建築確認番号 - セットバック -
現況 空家 国土法届出 不要
引渡時期 即引き渡し可 取引態様 仲介
設備その他 -
特記事項 -
備考 -
情報更新日 2026/04/17 広告有効期限 2026/05/18
電話でお問い合わせ
ヤマダ不動産 福岡香椎店 店舗情報
[所在地] 福岡県福岡市東区香椎駅前2丁目11-15
[営業時間] 10:00~19:00(定休日:水曜日)
Tel092-663-1616
お気軽にお問い合わせください。